
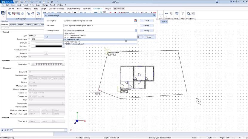
Eine genaue Georeferenzierung ist entscheidend für die korrekte Projektplatzierung, die Ausrichtung nach dem geografischen Norden und präzise Standortdaten. ALLPLAN 2026 bietet neue Optionen für die Georeferenzierung, wie z. B. Vermessungspunkt (für erdbezogene Koordinaten) und Basispunkt (für lokalen Ursprung und Projektversatz), um eine nahtlose Zusammenarbeit mit Formaten wie IFC zu gewährleisten und Probleme mit der Modellrotation beim Datenaustausch zu vermeiden. Diese Punkte werden visuell dargestellt, um die Platzierung und Anpassung zu erleichtern. Da der geografische Nordpol als separate Einstellung definiert ist, ermöglichen die Georeferenzierungswerkzeuge von ALLPLAN den Anwendern die genaue Positionierung von Projekten in realen Koordinaten, verbessern die interdisziplinäre Zusammenarbeit und gewährleisten die korrekte Ausrichtung aller BIM-Komponenten.

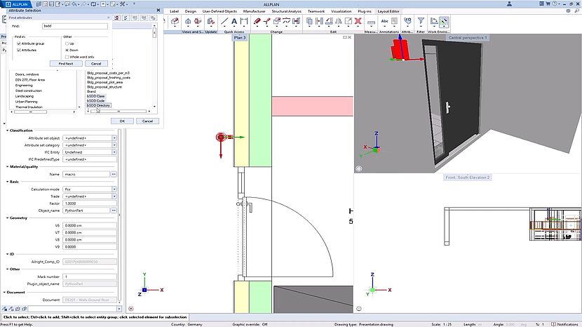
ALLPLAN 2026 vereinfacht BIM-Workflows durch integrierten bSDD-Zugriff auf über 300 Fachwörterbücher, darunter Nachhaltigkeitsstandards und länderspezifische Vorschriften von buildingSMART. Importieren und wenden Sie spezielle Attributsätze auf Ihre Objekte an, um Projekte schneller zu starten, bessere Entscheidungen zu treffen und einen nahtlosen openBIM-Datenaustausch zu ermöglichen – ohne manuelle Einrichtung. Bauen Sie intelligenter mit revisionsfähiger Dokumentation und hoher Datenqualität.

IDS (Information Delivery Specification) von buildingSMART ist ein standardisiertes Format, mit dem die Informationsanforderungen für BIM-Projekte klar definiert und automatisiert werden können, um sicherzustellen, dass BIM-Modelle alle für die Konformität erforderlichen Daten enthalten.
ALLPLAN 2026 bietet nun zusätzliche Unterstützung für IDS-Dateien – die Modellattribute werden automatisch überprüft und angepasst, um die BIM-Anforderungen zu erfüllen. Das bedeutet weniger Zeitaufwand für die Korrektur von Daten und mehr Zeit für die Planung, Koordination und Lieferung konformer Modelle.

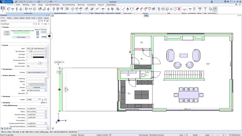
ALLPLAN 2026 führt eine komplett überarbeitete Informationspalette ein. Die neue Version bietet zahlreiche erweiterte Funktionen, darunter flexible Gruppierung, automatische Summenbildung, IDS-Validierung, Katalogintegration, verbesserte Navigation sowie erweiterte Sortier- und Filteroptionen. Eine neu gestaltete Benutzeroberfläche sorgt für eine intuitive Bedienung, während umfassende Leistungsoptimierungen reibungslose Arbeitsabläufe ermöglichen.

ALLPLAN 2026 verfügt über einen deutlich verbesserten XRef-Manager für intuitive und effiziente Workflows bei der Bearbeitung externer Referenzen, insbesondere von IFC-Dateien. Der neue Manager enthält integrierte 3D-Vorschauen für referenzierte IFC-Dateien direkt in der Benutzeroberfläche sowie visuelle Symbole, die anzeigen, ob eine XRef in ALLPLAN-Projektordnern oder an einem externen Speicherort gespeichert ist. Dies hilft Teams, Ressourcen schnell zu finden und zu überprüfen, was besonders bei der Arbeit mit Backup-Projekten, die XRefs enthalten, von Vorteil ist. Erweiterte Dateiverwaltungswerkzeuge wie Ersetzen, Filtern und Dateiauswahl bieten mehr Kontrolle und Effizienz bei der Verwaltung von Referenzen.
Eine wichtige Neuerung ist die Einführung der Cloud-Referenz, einem neuen IFC-XRef-Typ, der das direkte Einfügen von IFC-Dateien aus BIMPLUS, der cloudbasierten Kollaborationsplattform von ALLPLAN, ermöglicht. Durch diesen Ansatz müssen Dateien nicht mehr lokal heruntergeladen werden, wodurch der Speicherbedarf reduziert wird und sichergestellt ist, dass Teams immer mit den aktuellen Projektdaten arbeiten. Wenn IFC-Quelldateien in der Cloud gespeichert sind, können autorisierte Benutzer sie direkt in ALLPLAN in der Vorschau anzeigen, die IFC-XRef-Funktionen im Modellbereich voll ausnutzen und auf alle zugehörigen Informationsmanagement-Tools im XRef-Manager zugreifen. Diese nahtlose Integration verbessert auch den Informationsaustausch innerhalb der gemeinsamen Datenumgebung.
Weitere Verbesserungen umfassen die automatische Beibehaltung relativer Dateipfade, wodurch Speicherprobleme vermieden und konsistente Referenzverknüpfungen zwischen verschiedenen Systemen gewährleistet werden. Externe XRefs können zusammen mit ihren Ressourcen exportiert und importiert werden, während diejenigen, die in Projektordnern gespeichert sind, zur einfachen Übertragung als ZIP- oder APN-Dateien gepackt werden können. Zusammen bieten diese Verbesserungen Architektur- und Ingenieurteams einen klaren, einheitlichen Überblick über alle Projektreferenzen, vereinfachen die Datenverwaltung und stärken die Zusammenarbeit sowohl in lokalen als auch in cloudbasierten Umgebungen, was eine schnelle und zuverlässige Projektabwicklung ermöglicht.

Geodaten sind für Architekten, Ingenieure und Stadtplaner unverzichtbar, da sie fundierte Entscheidungen ermöglichen. ALLPLAN bietet spezielle Module für Stadtplanung und Landschaftsgestaltung, wobei die XPlan-Unterstützung derzeit nur für Deutschland gilt. Mit der GeoPackage-Integration ermöglicht ALLPLAN 2026 nun die Nutzung von GIS-Daten in allen EU-Ländern und darüber hinaus. GeoPackage ermöglicht den unkomplizierten Import und Export von Geodaten – einschließlich Geometrie, Attributen und .xls-Dateien – und passt sich flexibel an nationale Standards an. So erhalten Architekten, Planer und Behörden schnellen Zugriff auf genaue Standortinformationen, um bessere Entscheidungen in Bezug auf Flächennutzung, Infrastruktur und Umweltauswirkungen zu treffen.

Um nachhaltige Entwürfe zu ermöglichen, ist es unerlässlich, dass Architekten und Ingenieure die CO₂-Auswirkungen bereits in einer frühen Phase des Entwurfsprozesses berücksichtigen und bewerten. ALLPLAN 2026 ermöglicht eine Bewertung bereits in frühen Planungsphasen durch einen nahtlosen Workflow mit Preoptima CONCEPT. Benutzer können konzeptionelle Massenmodelle aus ALLPLAN nach Preoptima CONCEPT exportieren, um eine CO₂-Bewertung und -Validierung durchzuführen – ohne dass ein detailliertes BIM-Modell erforderlich ist.
Preoptima CONCEPT ermöglicht nicht nur die Berechnung des CO₂-Fußabdrucks, sondern bewertet auch den CO₂-Ausstoß während des Betriebs, den CO₂-Ausstoß über den gesamten Lebenszyklus (WLC) und unterstützt das Optioneering – damit können Anwender verschiedene Designvarianten zur CO₂-Optimierung vergleichen. So können Designer bereits in den frühen Phasen das gesamte Spektrum der Umweltauswirkungen eines Projekts nachvollziehen.
Durch die Nutzung der vielfältigen Regelsätze von Preoptima profitieren Anwender von automatisierten Geometrieprüfungen und Compliance-Unterstützung innerhalb von ALLPLAN, ohne dabei an Gestaltungsflexibilität einzubüßen. Dieser Workflow ermöglicht es Architekten, fundierte, ganzheitliche Entscheidungen zu treffen, wirtschaftliche und ökologische Aspekte von Anfang an abzuwägen und das Risiko kostspieliger Änderungen im Nachhinein zu reduzieren.
Mit diesen integrierten Funktionen stellen ALLPLAN 2026 und Preoptima CONCEPT sicher, dass Projektteams die besten nachhaltigen Entscheidungen treffen – und so von Anfang an intelligente, umweltfreundliche Gebäude realisieren.
