
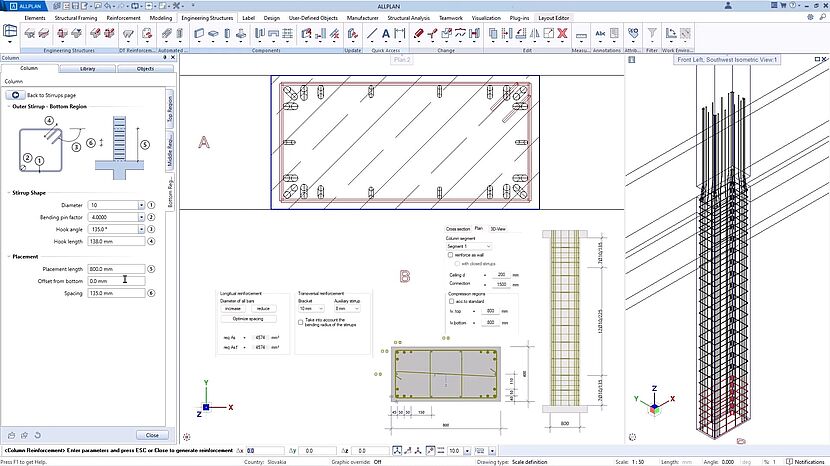
ALLPLAN 2026 ermöglicht es, Längsstäbe an quadratischen und rechteckigen Stützen unterschiedliche Durchmesser zuzuweisen und den axialen Abstand festzulegen – wahlweise konzentriert an den Ecken oder in frei definierten Abständen. Damit wird die Bewehrungsplanung effizienter, da manuelle Anpassungen nach der automatisierten Stützenbewehrung weitgehend entfallen. Zudem unterstützt eine verbesserte Schnittstelle die Übertragung von Bewehrungslayouts aus Analyse- und Bemessungssoftware wie FRILO. Das sorgt für durchgängige Abläufe vom Berechnungsmodell bis zur Ausführung, reduziert Fehlerquellen und erleichtert die Projektabwicklung.

Durch die Automatisierung der Bewehrungsdetails können Anwender Zeit sparen, Arbeitsabläufe beschleunigen und mit größerer Zuverlässigkeit arbeiten. ALLPLAN 2026 verbessert den automatisierten Arbeitsablauf für die Bewehrung von Wänden weiter und bietet eine optimierte Automatisierung sowie eine schnellere Detaillierung. Die Priorität der horizontalen oder vertikalen Bewehrung kann mit einem einzigen Klick festgelegt werden, und jeder Bewehrungstyp kann nach Bedarf ein- oder ausgeschaltet werden. Dies macht die Automatisierung praktisch und intuitiv, sodass Anwender in vollem Umfang von der Geschwindigkeit, Zuverlässigkeit und Sicherheit profitieren können, die ALLPLAN bietet.

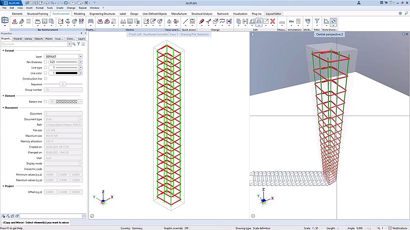
ALLPLAN 2026 führt einen optimierten Reinforcement to Field-Workflow ein, der die Modellierung und Verwaltung von Bewehrungen in Bauprojekten auf ein neues Niveau hebt. Damit werden erstmals vollständig digitale Workflows für Stahlbetonkonstruktionen möglich. Bewehrungen lassen sich direkt in isometrischen Ansichten platzieren, Anwender profitieren von einer verbesserten Attributverwaltung und können Kollisionen selbst bei hoher Stabdichte effizient lösen. Durch die nahtlose Integration dieser Informationen entsteht ein durchgängiger digitaler Prozess vom Detailplan bis auf die Baustelle, der Fehler reduziert, die Produktivität steigert und den Weg ins digitale Bauen deutlich beschleunigt.

Durch die Verbesserung des SAF-Imports nach BIMPLUS können SAF-Dateien jetzt direkt in BIMPLUS eingelesen werden – ohne den bisherigen Umweg über den Autoconverter. Dank erweiterter Filteroptionen lassen sich Modelle nach Materialien, Querschnitten, Lasttypen oder Lastfällen anzeigen – dies sorgt für deutlich mehr Übersichtlichkeit und Effizienz im gesamten Projektverlauf.
Darüber hinaus ermöglicht die Einbettung des BIMPLUS-Viewers in die Excel-basierte SAF-Umgebung eine interaktive Navigation: Wenn ein Objekt in der Datei ausgewählt wird, wird es im Modell hervorgehoben. Diese einzigartige Integration beschleunigt Überprüfungen, vereinfacht die Fehlererkennung und bietet Ingenieuren, die mit SAF-Daten arbeiten, leistungsstarke Unterstützung.

Greifen Sie auf einen umfassenden Querschnittskatalog für Baustahl zu, der jetzt in der Cloud verfügbar ist und von Teams und Partnern sofort genutzt werden kann. Da die neuesten Profile und Spezifikationen in einer einzigen Quelle gepflegt werden, profitieren alle von genauen und aktuellen Daten. Die intuitive Benutzeroberfläche erleichtert die Visualisierung von Querschnittseigenschaften und ermöglicht so schnellere technische Entscheidungen und eine reibungslose Zusammenarbeit zwischen den Projekten.
