
Angesichts der steigenden Nachfrage nach herausragenden Designs benötigen Architekten und Planer flexible Werkzeuge, um einzigartige, funktionale Treppen zu entwerfen. Freiformtreppen passen perfekt in ungewöhnliche Räume und bieten mehr kreative Möglichkeiten für jedes Projekt. ALLPLAN 2026 führt einen flexiblen Treppenmodellierer ein, mit dem sich auch in schwierigen Räumen ganz einfach individuelle und unkonventionelle Treppen entwerfen lassen. Mit dem Freiform-Treppenmodellierer können Sie einzigartige oder komplexe Formen erstellen, die den länderspezifischen Normen entsprechen. Darüber hinaus können Sie jetzt Referenzebenen am oberen oder unteren Ende der Treppe definieren, wodurch sich Wände oder Räume unter Treppen schneller hinzufügen lassen. Genießen Sie unübertroffene Vielseitigkeit und Effizienz – alles in einem einzigen, intuitiven Werkzeug für die Planung herausragender, normgerechter Treppen.

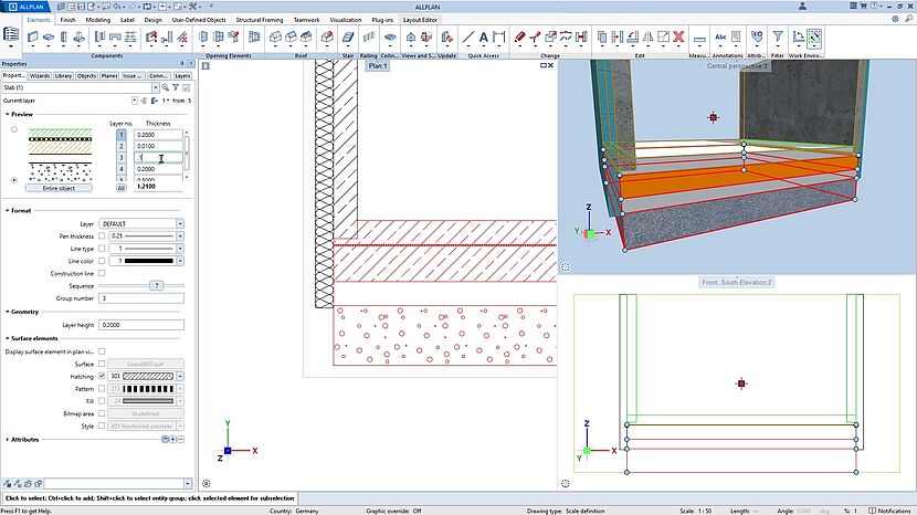
Die Bauindustrie benötigt effiziente Methoden, um mehrschichtige Bauteile für moderne und nachhaltige Gebäude zu entwerfen und zu verwalten – und dabei in jeder Projektphase die Standards einzuhalten. In ALLPLAN 2025 wurden mehrschichtige Decken sowie verbesserte Werkzeuge für die Detaillierung und Ausführungsplanung eingeführt. Mit ALLPLAN 2026 ist die Planung mehrschichtiger Decken und Fundamente jetzt intuitiver und effizienter denn je. Mit den neuesten Updates können Architekten und Ingenieure die Abmessungen präzise steuern und Änderungen dank einer neuen interaktiven Vorschau sofort überprüfen.

ALLPLAN 2026 verbessert die Arbeitsabläufe für die Modellierung von Oberflächen. Zu den wichtigsten Funktionen gehören mehrschichtige vertikale Oberflächen mit realistischer geometrischer Darstellung in Kombination mit einer regelbasierten Verteilung, ein neuer Raumfilter zum Organisieren zugehöriger Raumoberflächen oder zur Unterstützung alternativer Designs, die Anzeige vertikaler Oberflächen wie Wände im Grundriss, die 3D-Modellierung von Sockelleisten und eine verbesserte Oberfläche für die Ebenenverwaltung. Diese Verbesserungen unterstützen Architekten bei der Erstellung präziser 2D- und 3D-Pläne, vereinfachen die Handhabung von Oberflächen, reduzieren Fehler und erleichtern die Anpassung an verschiedene Projektarten. Darüber hinaus ermöglicht der optimierte Berechnungsprozess Planern, Zeit bei Designänderungen und der Aktualisierung komplexer Projekte zu sparen.

ALLPLAN 2026 führt eine verbesserte Funktion für benutzerdefinierte Komponenten mit prioritätsbasierten Verbindungen (PBC) im BIM-Modell ein. Diese Verbesserung ermöglicht eine nahtlose Interaktion zwischen benutzerdefinierten Elementen und nativen Gebäudekomponenten – wie Wänden, Säulen und Decken – sowie zwischen benutzerdefinierten Objekten. Planer können nun komplexe Formen noch exakter modellieren, während automatisierte Interaktionen den manuellen Aufwand reduzieren und Fehler minimieren.

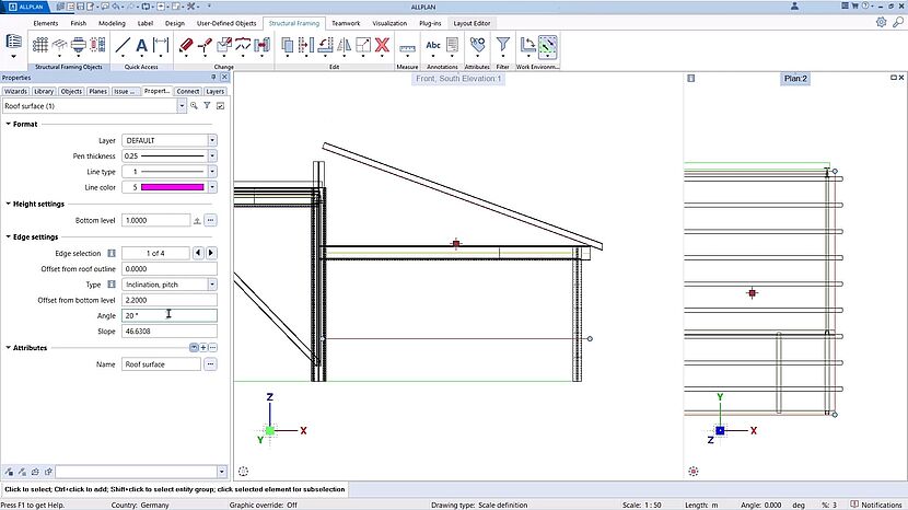
Neue Werkzeuge zum Platzieren von Pfetten und Sparren beschleunigen das Modellieren von Gebäuden und das Anpassen von Rahmenwerk-Layouts an Änderungen der Dachgeometrie. Verbesserte Fangoptionen sorgen dafür, dass Stahlelemente auf Anhieb präzise platziert werden, wodurch Verbindungsfehler reduziert werden.

Verschwenden Sie keine Zeit mehr mit der Korrektur von Verbindungsfehlern – beschleunigen Sie Ihre Entwürfe in ALLPLAN 2026 mit neuen Funktionen zur automatischen Anwendung und Aktualisierung von Verbindungen, die sicherstellen, dass Stahlkonstruktionen auch bei Entwurfsänderungen korrekt und gültig bleiben.

ALLPLAN 2026 führt eine modernisierte, einheitliche Eigenschaftenpalette für die Erstellung und Änderung von Wänden ein, einschließlich geometrischer Eigenschaften. Diese konsistente und intuitive Benutzeroberfläche erleichtert neuen Anwendern den Einstieg, während erfahrene Anwender von einer verbesserten Handhabung und nahtlosen Arbeitsabläufen über verschiedene Objekttypen hinweg profitieren.
