
Mit dem ALLPLAN Add-On PatchWork erstellen Sie parametrische 2D- und 3D-Geometrien – intuitiv, flexibel und effizient. Egal, ob Sie 2D-Grundrisse entwerfen, komplexe 3D-Freiformbauteile wie Tragwerksstürze und Dächer modellieren oder Umgebungs- und Freiraumplanungen um Ihr Bauvorhaben umsetzen: PatchWork integriert sich nahtlos in Ihren Workflow.
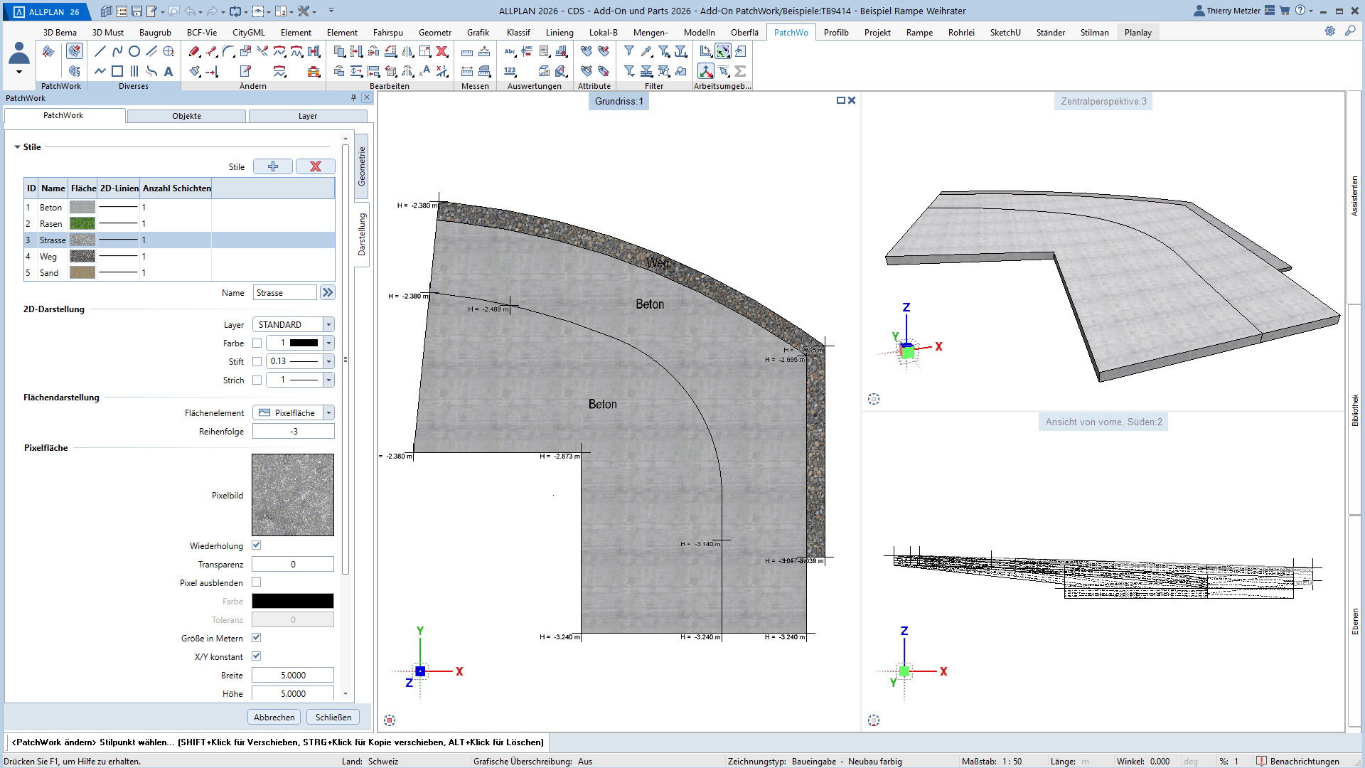
Der innovative Workflow ermöglicht die Geometrieerzeugung durch Punkte, Linien, Kreise, Splines und Kurven. In einem zweiten Schritt platzieren Sie Höhenpunkte an Eck- und Schnittpunkten, definieren Bereiche und weisen diesen verschiedene Materialstile zu – zum Beispiel Asphalt, Beton, Platten, Sand oder Rasen. PatchWork generiert daraus perfekte 2D-Darstellungen und 3D-Volumen, die aus mehreren Materialschichten bestehen können.
Alle Punkte, Linien und Kurven sind jederzeit anpassbar – Längenprofile, Flächen und Volumina lassen sich in jeder Planungsphase flexibel verändern. Und das alles über eine übersichtliche Palette, ohne Spezialwissen oder Programmierkenntnisse.
Mit PatchWork sparen Sie Zeit, erhöhen die Planungssicherheit und haben die volle Kontrolle über jede Geometrie – von der ersten Skizze bis zum fertigen Modell.
![]() | ![]() | ![]() |
| PatchWork erzeugen | PatchWork ändern | Lizenz Anzeigen |








Verfügbare Sprachen: Deutsch und Englisch
Systemvoraussetzungen Baugrube: ALLPLAN 2024-2026
Add-On Hersteller: CDS Bausoftware AG
Add-On Installation und Lizenzierung.pdf
Download SharePoint / Setup 14 Tage testen
Installationsanleitung mit dem Multi Setup inkl. Lizenz Verwaltung
Einzelplatz / Lizenz-Bundle (WIBU):
Die Einzelplatzlizenz / Lizenz-Bundle wird jeweils an eine vorhandene ALLPLAN Lizenz (Arbeitsplatz) gekoppelt und kann so einfach von einem PC auf den anderen übertragen werden.
Dieser Lizenztyp wird mit ALLPLAN 2025 nicht mehr unterstütz, da es im neuen 10Duke Lizenzierungs-System von ALLPLAN keine Arbeitsplatz Nummer mehr gibt.
User-Lizenz (10Duke):
Die User-Lizenzen werden jeweils an die E-Mail Adresse gebunden und funktionieren mit der neuen 10Duke Lizenzierung von ALLPLAN zusammen.
Auch mehrere E-Mail Adressen sind bei diesem Lizenztyp möglich. Die Lizenzen können jeweils im eigenen Büro an andere E-Mail Adressen freigegeben werden.
Bürolizenzen (Kundennummer):
Die Bürolizenz wird jeweils an die ALLPLAN Kundennummer gekoppelt und funktioniert mit allen ALLPLAN Lizenzen im Büro.
Dieser Lizenztyp ist auch unsere Empfehlung. Der Preis richtet sich jeweils an der max. Anzahl ALLPLAN Lizenzen im Büro aus.
Mit den attraktiven Bundles erhalten kleine Büros bis 5 Arbeitsplätze ein spezielles Angebot.
Testversionen:
Sie können das Add-On 14 Tage kostenlos im Büro testen.
Sie erhalten die Lizenzen jeweils für 1 Jahr freigeschaltet.
Mit dem Education Bundle erhalten Sie alle Add-Ons und Parts kostenlos für Ihre Ausbildung.
Die Lizenzen sind nur im Zusammenhang mit einer ALLPLAN Studentenversion (campus.allplan.com) verfügbar.
Häufig gestellte Fragen in Verbindung mit dem neuen Lizenz System 10Duke von ALLPLAN.
Hier geht es zum FAQ
Support Anfragen zu den Add-On's sind im Keymember Abo enthalten.
12 Monate Subscription User-Lizenz:
Lizenzpreis pro Mail Adresse: CHF 480/Jahr (CH) / Euro 480/Jahr (EU)
12 Monate Subscription Bürolizenz bis 10 ALLPLAN Lizenzen:
Bürolizenzpreis für alle Arbeitsplätze: CHF 2'400/Jahr (CH) / Euro 2'400/Jahr (EU)
12 Monate Subscription Bürolizenz mehr als 10 ALLPLAN Lizenzen:
Bürolizenzpreis für alle Arbeitsplätze: CHF 4'800/Jahr (CH) / Euro 4'800/Jahr (EU)
12 Monate Subscription Bürolizenz mehr als 50 ALLPLAN Lizenzen:
Preis auf Anfrage
Vertragsbedingungen: Automatische Verlängerung um 12 Monate
Kündigungsfrist: 3 Monate zum Ende der Vertragslaufzeit
Alle Preise exkl. MwSt.
Add-On Shop
Add-On Shop PatchWork